Karena daya dukung tanah telah mencukupi. Analisis-analisis kapasitas dukung dilakukan dengan cara pendekatan untuk memudahkan hitungan.
Menghitung Ukuran Dimensi Pondasi Menerus Batu Kali Home Design And Ideas
Pondasi ini memiliki kedalaman masuknya ke tanah relatif dangkal hanya beberapa meter masuknya ke dalam tanah yaitu sekitar 08 m 1 m.
. 2 pengetahuan atau kepandaian tentang soal duniawi akhirat lahir batin dan sebagainya--padi makin berisi makin runduk pb makin. Jenis pondasi ini digunakan. Dia memperoleh gelar doktor dalam -- pendidikan.
Tata cara perancangan beton pracetak dan beton prategang untuk bangunan gedung ICS 9108040 Hak cipta Badan Standardisasi Nasional copy standar ini dibuat untuk SPT. Yang dimaksud pondasi dangkal adalah apabila kedalaman alas pondasi Df dibagi. Lebar terkecil alas pondasi B kurang dari 4 DfB 4.
Jenis-jenis struktur bawah Pondasi Secara umum jenis-jenis struktur bawah pondasi dibagi menjadi 3 bagian yaitu. Bahan konstruksi bangunan dan rekayasa sipil dan. Lampiran i peraturan presiden nomor 18 tahun 2020 tentang rencana pembangunan jangka menengah nasional tahun 2020-2024.
Pondasi Dangkal Jenis pondasi dangkal biasanya digunakan untuk konstruksi beban ringan dan kondisi lapisan permukaan yang cukup baik. Oleh karena itu kesalahan perhitungan untuk pondasi yang dalam. Pondasi dangkal sumuran dan pondasi dalam.
Ilmu n 1 pengetahuan tentang suatu bidang yang disusun secara bersistem menurut metode tertentu yang dapat digunakan untuk menerangkan gejala tertentu di bidang pengetahuan itu. Pondasi dangkal terdiri dari. Dukung Pondasi Dengan Analisis Terzaghi 2013 12 Persamaan daya dukung Terzaghi mengabaikan kuat geser tanah di atas pondasi dan hanya cocok untuk pondasi dangkal dengan Df B.
Perhitungan Pondasi Dalam Berdasarkan Data Sondir Metode Van Der Ween Youtube
Cara Menghitung Volume Pondasi Batu Kali Kumpul Engineer
Penurunan Pondasi Dangkal W I N N I L I C I O U S
Daya Dukung Tanah Pondasi Dangkal Metode Vesic Youtube
Apa Itu Pondasi Telapak Beserta Kelebihan Dan Kekurangannya Kumpul Engineer
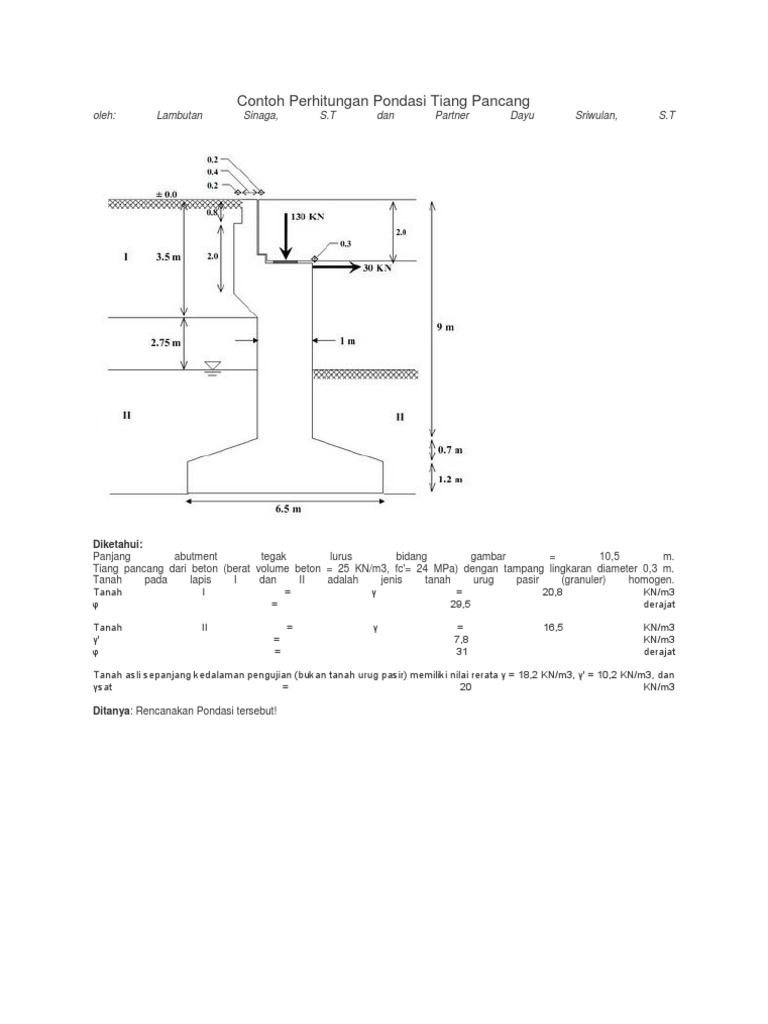
Contoh Perhitungan Pondasi Tiang Pancang Pdf
Cara Menghitung Jumlah Besi Pondasi Setempat Pondasi Foot Plat Proyek Sipil Besi Arsitektur Desain
Ilmu Konstruksi Bangunan Adalah Sebuah Blog Yang Memberikan Tutorial Gratis Seputar Ilmu Konstruksi Bangunan Bangunan Lantai Arsitektur
Doc Contoh Soal Pondasi Dangkal Agunx Moe Academia Edu
Menghitung Volume Pondasi Tapak Cakar Ayam Dan Batu Kali Pengadaan Eprocurement
Menghitung Ukuran Dimensi Pondasi Menerus Batu Kali Home Design And Ideas
Seri Perencanaan Bangunan Desain Pondasi Pt Architectaria Media Cipta
Menghitung Daya Dukung Pondasi Dangkal Menggunakan Analisis Meyerhof Youtube
Menentukan Dimensi Pondasi Dangkal Dan Daya Dukung Tanah Youtube
Cara Menghitung Jumlah Besi Pondasi Setempat Pondasi Foot Plat Proyek Sipil Lantai Rumah Denah Lantai Rumah
Cara Menghitung Volume Galian Struktur Untuk Fondasi Setempat Kumpul Engineer
Daya Dukung Tanah Pondasi Dangkal Metode Vesic Youtube
Ebook Analisa Anggaran Biaya Pelaksanaan Belajar Teknik Sipil Teknik
